Нора Ёжика

Незаконный проект для незаконной стройки

Глава Москомархитектуры Юлиана Княжевская считает москвичей, и меня в частности, тупым быдлом, которое радостно схавает любую чушь, которую чинуши напишут в ответ на жалобы. Не пролезет, Юлиана Владимировна, у нас есть мозги, чтобы вы там себе не думали!

Итак, сейчас я с документами в руках докажу, что все разрешительные документы на строительство ЖК «Берег столицы», официально именуемого «Центр водных видов спорта «Динамо», выданы с грубыми нарушениями закона. И выдавшие их, в том числе и г-жа Княжевская, должны будут за это ответить!

Итак, летом этого года разбираясь с планами по застройке Хорошевского конного двора я обнаружил, что все три года борьбы с Берегом столицы упускал важнейшую деталь — эта стройка нарушает предельную высотность строительства, разрешенную для охранной зоны ООПТ «Памятник природы «Серебряный бор», установленную Постановлением Правительства Москвы от 15.02.2005 N 86-ПП (ред. от 27.09.2016) «О памятнике природы «Серебряный Бор».

Согласно п. 4.13 Положения, утвержденного этим постановлением, высота строящихся в охранной зоне зданий ограничивается 10 м, а заглубление фундамента — 2 м.

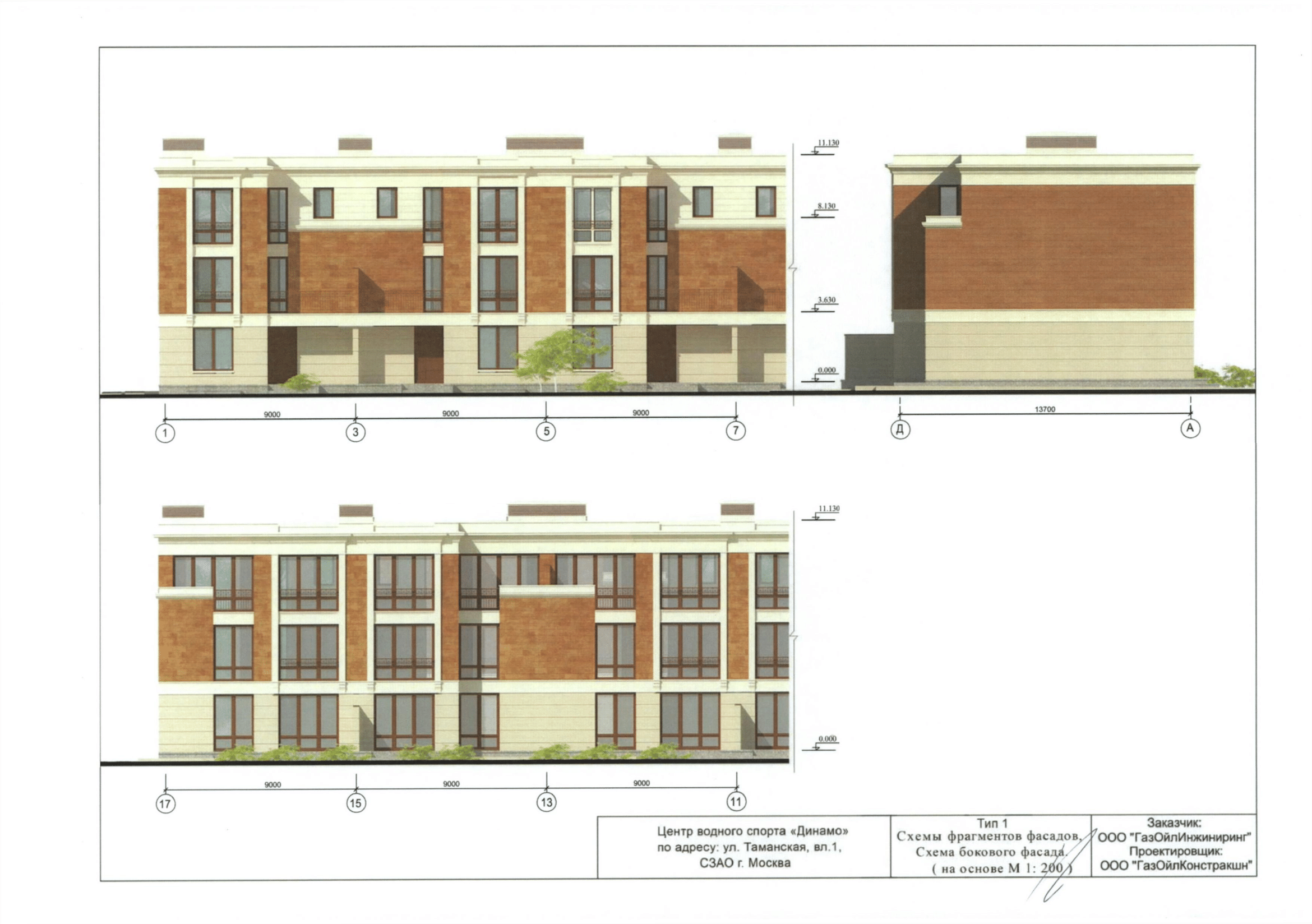
Открываем Архитектурно-градостроительное решение Берега столицы и видим, что входящие в Центр здания имеют следующую высоту и глубину:
Корпус ТИП 1 — высота 11.13м, глубина -3.3м
Корпус ТИП 2 — высота 12.12м, глубина -3.3м
Корпус ТИП 3 — высота 12.2м, глубина -3.3м
Корпус К1 — высота 14.54м, глубина -3.8м

Таким образом, ни одно из зданий не соответствует требованиям Постановления Правительства Москвы от 15.02.2005 N 86-ПП и Постановления Правительства Москвы от 27.01.2004 N 31-ПП, о чем я незамедлительно написал во все заинтересованные органы. Заинтересованные органы заявили, что нарушений не усматривают. Не буду утомлять вас идиотскими ответами ДПиООСа и Мосгостройнадзора, в которых слова высота и глубина не упоминаются вообще, дам краткий пересказ: «нам принесли согласованную документацию ,прошедшую экспертизу, остальное нам пофиг».

А вот ответ Москомархитектуры мы сейчас разберем внимательно, потому что именно этот орган утвердил всю проектную документацию и у меня есть Архитектурно-градостроительное решение, подписанное главным архитектором Москвы Кузнецовым.

И именно это АГР наглядно доказывает мою правоту — все иллюстрации далее именно из него.

Итак, ответ Княжевской:

Как вам эта прелесть про «более протяженную длину по вертикали»? Мне очень понравилось. Но давайте разбираться, есть ли здания с перепадом рельефа в составе Берега столицы?

В принципе, есть. Одно. Админстративно-бытовой комплекс. И к нему претензий не было — у него высота в пределах разрешенной!

Все остальные здания расположены на совершенно ровном спланированном участке, перепадов высот там нет вообще.

Ни у одного здания нет перепадов высот, у всех зданий указаны высоты, превышающие разрешенную.

Открываем экспертизу, на положительное заключение которой ссылаются все жулики. И видим там вот такое:

 

Все высоты и глубины за разрешенными пределами. И обратите внимание — высоты МЕНЬШЕ, чем в АГР, а глубины — наоборот БОЛЬШЕ, то есть еще и АГР не соответствует экспертизе…

А вот чего мы не видим в заключении экспертизы — так это указания на то, что объект находится в охранной зоне ООПТ. Там этого просто нет, соответственно нет и ни слова про установленные для охранной зоны ограничения.

Полный скан АГР доступен здесь, заключения Мосгосэкспертизы — здесь.

Да, Юлиана Владимировна, построено все в точном соответствии проекту, я с этим и не спорю. Проект только не соответствует закону и вам придется это признать, хотите вы этого или нет.

Давайте поможем госпоже Княжевской осознать глубину ее неправоты.

Отправьте, пожалуйста, Собянину через электронную приемную на mos.ru следующий текст:

Как мне стало известно из открытого источника — публикации на сайте «Нора Ёжика» (https://ezhick.online/2020/03/24/10693/) — при согласовании проектной документации объекта капитального строительства «Центр водного спорта «Динамо», строящегося по адресу: ул. Таманская, вл. 1. экспертной организацией и государственными органами было проигнорировано несоответствие проектных решений требованиям Постановления Правительства Москвы от 15.02.2005 N 86-ПП и Постановления Правительства Москвы от 27.01.2004 N 31-ПП в части ограничения высоты застройки в охранной зоне ООПТ «Памятник природы «Серебряный Бор». 

Прошу вас принять необходимые меры для:

  1. Отзыва разрешение на строительство № 77-212000-018749-2020 от 19.02.2020 и прекращение строительства корпуса К1.

  2. Аннулирования разрешение на ввод в эксплуатацию от 19.06.2019 № 77-212000-008985-2019, обеспечить прекращение эксплуатации зданий.

  3. Аннулирования Свидетельство об утверждении АГР от 29.03.2019 № 182-4-19/С.

  4. Аннулирования Заключения негосударственной экспертизы от 07.06.2018 № 77-2-1-3-0063-18

  5. Привлечения к ответственности должностных лиц, выдавших/подписавших указанные выше документы, а так же участвовавших в их подготовке. 

  6. Привлечения к ответственности застройщика.

  7. Привлечения к ответственности должностных лиц Департамента природопользования и охраны окружающей среды в течение многих лет игнорировавших допущенные нарушения при застройке охранной зоны ООПТ.

Незаконный проект для незаконной стройки
Exit mobile version